Garden Place 27

Scale Icon - Realtor X Webflow Template
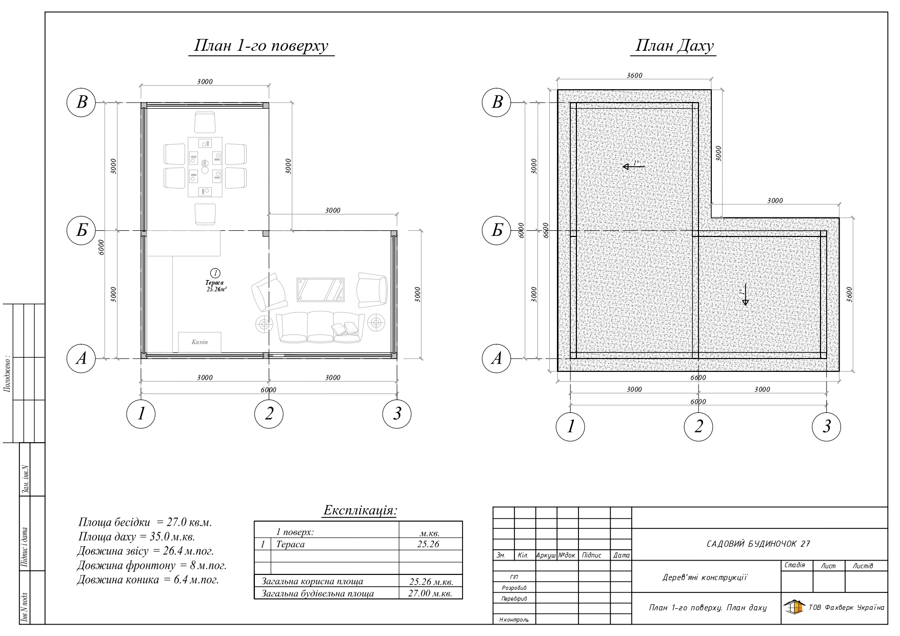
27m2
від 6,990 у.о

Опис:

  • Стильний та вмісткий садовий будиночок, в якому є можливість відпочити як на веранді, прийняти гостей тощо
  • Додатково можно замовити розсувне засклення зони відпочинку та камін.
  • Конструкція має свою підлогу, та може монтуватися на любому грунті.
  • В комплект входять фундаментні стовбчики.
  • Конструкція каркасу, стін, підлоги - оброблена та пофарбована деревина.
  • Покрівля - довговічна ПВХ мембрана Німецького виробника.
  • Розміри можно змінювати на Ваше бажання.
  • Швидкий монтаж на 3 дні.
  • Можливо замовити інший розмір з перерахунком вартості.

Гарантійне обслуговування за рахунок компанії "Фахверк Україна" 3 роки. Післягарантійне обслуговування кваліфікованими працівниками за рахунок домовласника - довічне.

*Комплекти

Збери сам - 6,490 у.о

Домкомплект який потребує самостійного збирання

Каркас із соснового бруса.
Вікна мелатопластикові.
Двері дерев'яні.
Фасад - сушена, строгана соснова дошка без пазів.
Покрівля - кроквяна конструкція та настил з строганої сушеної соснової дошки без пазів.
Набір лобової, стінової, порівельної, терасної дошки без зарізки.
Набір кріплення для силової конструкції будинку
Набір фарб для фарбування дерев'яних виробів.
Креслення із самостійного складання домокомплекту
Покрівельна мембрана та роботи по збірці будинку
Гарантійні зобов’язання компанії

Стандарт - 7,990 у.о

Середня комплектація  під ключ

Каркас із соснового бруса.
Вікна мелатопластикові, дерев'яні двері.
фундамент зі стовбчикив під конструкцію.
Фасад - сушена, строгана соснова дошка без пазів.
Покрівля - кроквяна конструкція та настил з строганої сушеної соснової дошки без пазів, мембрана ПФХ в комплекті.
Водосточні зливи тід трубу.
Підлога з соснової терасної дошки на соснових лагах.
Збірка каркаса, покрівлі, скління, фарбування фасаду.
Транспортні витрати

Комфорт - 9,990у.о

Максимальна комплектація  під ключ

Каркас із клеєного бруса
Вікна та двері - металопластикові Rehau, ламіновані в колір фасаду.
Розсувна алюмінієва система з каленим склом.
Фасад – Планкен, чи імітація брусу з 2х сторін.
Покрівля - кроквяна конструкція та настил з строганої сушеної соснової дошки без пазів, мембрана ПФХ в комплекті.
Водостічна система Zambelli
Підшивка покрівлі дерев'яною вагонкою
Збірка каркаса,покрівлі, скління, фарбування фасаду.
Терасина дошка з термоосики.
Транспортні витрати