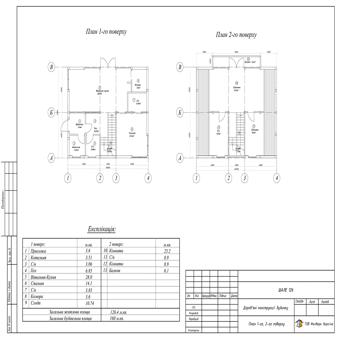
Chalet 126

Scale Icon - Realtor X Webflow Template
126m2
Bed Icon - Realtor X Webflow Template
3
Bathroom Icon - Realtor X Webflow Template
2
від 77,990 у.о

Особливості проекту:

  • Особливість проекту - це компактність, з досить просторими кімнатами, максимально єргономічно влаштований 2й поверх, з широким балконом та панорамним засклінням.
  • Завдяки конфігурації покрівлі - яка нависає над вітражами та передньою терасою, виходить відчутна тінь влітку в будинку, та захист садових меблів у дощові дні на терасі, що надає затишку і зручності користування.
  • Розміри будинку 8Х10метрів, дуже розширюється завдяки вітражному склінню від підлоги до стелі, щоробить всі кімнати, за відчуттями та візуально, на багато просторішими, за істотної економії опалення та кондиціонування.
  • Це дуже теплий будинок, в комплектаціі «комфорт», розрахункові витрати на опалення становлять всього 50Вт / м.кв./год. при температурі на вулиці -20гр / С, а в будинку +21гр / С. А в разі встановлення рекуператора, показник значно покращується, в середньому 38Вт/м.кв./год.

Гарантійне обслуговування за рахунок компанії "Фахверк Україна" 3 роки. Післягарантійне обслуговування кваліфікованими працівниками за рахунок домовласника - довічне.

*Комплекти

Збери сам - 49,990 у.о

Домкомплект який потребує самостійного збирання

Каркас із клеєного бруса
Вікна та двері - металопластикові Rehau, ламіновані в колір фасаду
Склопакети - однокамерні, енергозберігаюче гартоване скло, аргононаповнені
Фасад - готові стінові панелі з дерев'яним планкеном
Покрівля - кроквяна конструкція
Набір вагонки та лобової дошки без зарізки
Набір кріплення для силової конструкції будинку
Набір герметиків та фарб для фарбування дерев'яних виробів і встановлення склопакетів та вікон
Креслення із самостійного складання домокомплекту
Роботи і матеріали по збірці будинку
Гарантійні зобов’язання компанії

Стандарт - 77,990 у.о

Середня комплектація будинку під ключ

Каркас із клеєного бруса
Вікна та двері - металопластикові Rehau, ламіновані в колір фасаду
Склопакети - однокамерні, енергозберігаюче протиударне розжарене гартоване скло, аргононаповнене
Фасад - дерев'яний планкен, пофарбований Австрійською фарбою Adler
Покрівля з натуральної черепиці.
Водостічна система Zambelli
Підшивка покрівлі дерев'яною вагонкою
Збірка каркаса, покрівлі, скління, фарбування фасаду.
Фундамент
Тераси першого та другого поверху
Транспортні витрати
Комунікації
Утеплення
Перегородки внутрішні
Чорнове та чистове оздоблення
Підключення до зовнішніх комунікацій

Комфорт - 111,770 у.о

Максимальна комплектація будинку під ключ

Фундамент залізобетонна плита.
Каркас із клеєного бруса
Вікна та двері - металопластикові Rehau, ламіновані в колір фасаду
Склопакети - двокамерні, енергозберігаюче мультифункціональне покриття від сонячних променів, тонування, протиударний антивандальний триплекс, аргононаповнені
Фасад – Японські фасадні панелі ЦСП KMEW
Покрівля з натуральної черепиці.
Водостічна система Zambelli
Підшивка покрівлі дерев'яною вагонкою
Збірка каркаса,покрівлі, скління, фарбування фасаду.
Утеплення стін 100мм мінвата і 50мм. PIR
Внутрішні гіпсокартонні перегородки з шумоізоляцією
Розводка комунікацій - вода, каналізація, електрика, теплі підлоги.
Тераса з соснової палубної дошки з покриттям терасною олією.
Заливка підлог
Утеплення покрівлі 250мм
Транспортні витрати
Чистове оздоблення
Підключення до зовнішніх комунікацій